施工事例 WORKS
これはお家?ここにしかないお店の様なお家創り。
これはお家?ここにしかないお店の様なお家創り。
事務所件自宅として利用できる様にしたいというご要望から打ち合わせが開始。
最初の打ち合わせは落ち着いた仕様の内容でしたが、「どうせなら事務所でなくお店にしては?」の一言で、打ち合わせを重ねる事にどんどん遊びのある内容に変化(笑)。普通の階段では物足りず、完全当社オリジナルのオープン階段造作や、コンクリートブロックを積んでキッチンを置く等、店舗を意識したリノベーションをさせて頂き、お客様をお招きするのが楽しみになるお家が完成しました。
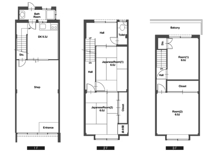
- 専有面積 98㎡
- 間取り 4LDK→3LDK
- 建物 鉄骨造戸建
- 築年数 43年
- 工期 4ヵ月
- 参考費用 1300万円
Before
After


































