施工事例 WORKS
狭いから広々へ。素敵なお家創りが完成。
狭いから広々へ。素敵なお家創りが完成。
元々のお住まいでは、狭くは無い平米数でしたが、動線が良くなく窮屈な印象を持たれておられました。
小さなお子様が生まれ家族3人となり、お部屋数よりもゆったり過ごせる空間を取りたいという事がコンセプトで打ち合わせが開始。色々なショールームへ足を運んで頂き、デザインだけでない使い勝手もきちんと確認して頂き、ストレスの無いお家創りをお手伝いさせて頂きました。実は工事の途中で色々問題が発生しましたが、何度も打ち合わせを重ね、とっても素敵なお家が完成し、最後はご家族と私たち全員が笑顔になれるリノベーションでした。
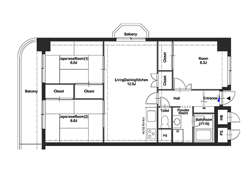
- 専有面積 68㎡
- 間取り 3LDK→2LDK
- 建物 マンション
- 築年数 40年
- 工期 2ヶ月
- 参考費用 850万円
Before
After




























