施工事例 WORKS
ご自宅で最高なおもてなしを。
ご自宅で最高なおもてなしを。
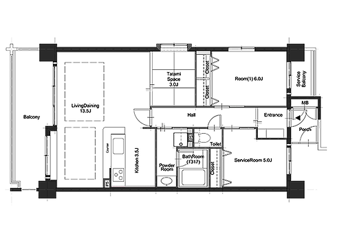
今回のお客様は以前からお付き合いのある法人様。京都というエリアで、ゲストを招いておもてなしが出来る空間がコンセプトでプランニング開始。3LDKから2LDKにし畳スペースを造作しお風呂も和を意識したチョイス。また、ゲストとのキッチンカウンターでの食事も意識し、L型カウンターで広く設計しました。なんとなく着物が似合う和モダンで素敵な空間が完成です。
- 専有面積 70㎡
- 間取り 3LDK→2LDK
- 建物 マンション
- 築年数 25年
- 工期 2ヶ月
- 参考費用 950万円
Before
After


































