施工事例 WORKS
「可愛い」×「かっこいい」な家族4人の暮らし。
「可愛い」×「かっこいい」な家族4人の暮らし。
ご夫婦共にデザイナーな雰囲気なお二人。
また、可愛い女の子のお子様お二人の為に「可愛い」×「かっこいい」なテイストのお家創りを開始しました。
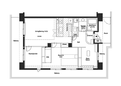
4LDKもあったお部屋を2LDKに設計し、マンションの1室とは思えないエントランスへリノベーション。
ご趣味でスニーカーやお洋服がたくさんあり、収納する事を考えるより、あえて魅せる事でデザイン性のあるまるでアパレルショップの様な空間に大変身!
お子様お二人のお部屋も、お子様が喜ぶハシゴ付ベットとデスクを置くために広々設計♪
お子様部屋に続くオープンクローゼットも楽しみあふれるテイストに仕上がりました。
こちらのお部屋はマンションという事もあり、防音性能を保ちながらも床材をデザイン性があるものにする為に現場では四苦八苦、、、(笑)
最終的にはきちんと防音も取り入れる床仕上げでも段差なくフラットに仕上げる事が出来、ワクワクするお部屋が完成しました(^^)
- 専有面積 85㎡
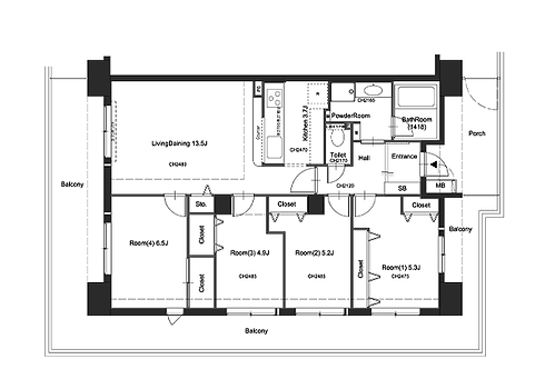
- 間取り 4LDK→2LDK
- 建物 マンション
- 築年数 25年
- 工期 2ヶ月
- 参考費用 800万円
Before
After
































